3D Planner
Home / Products / Sport and fitness / PARKOUR / PARKOUR S

Product code:

PARKOUR S

  • 6 y
  • 2.5 m
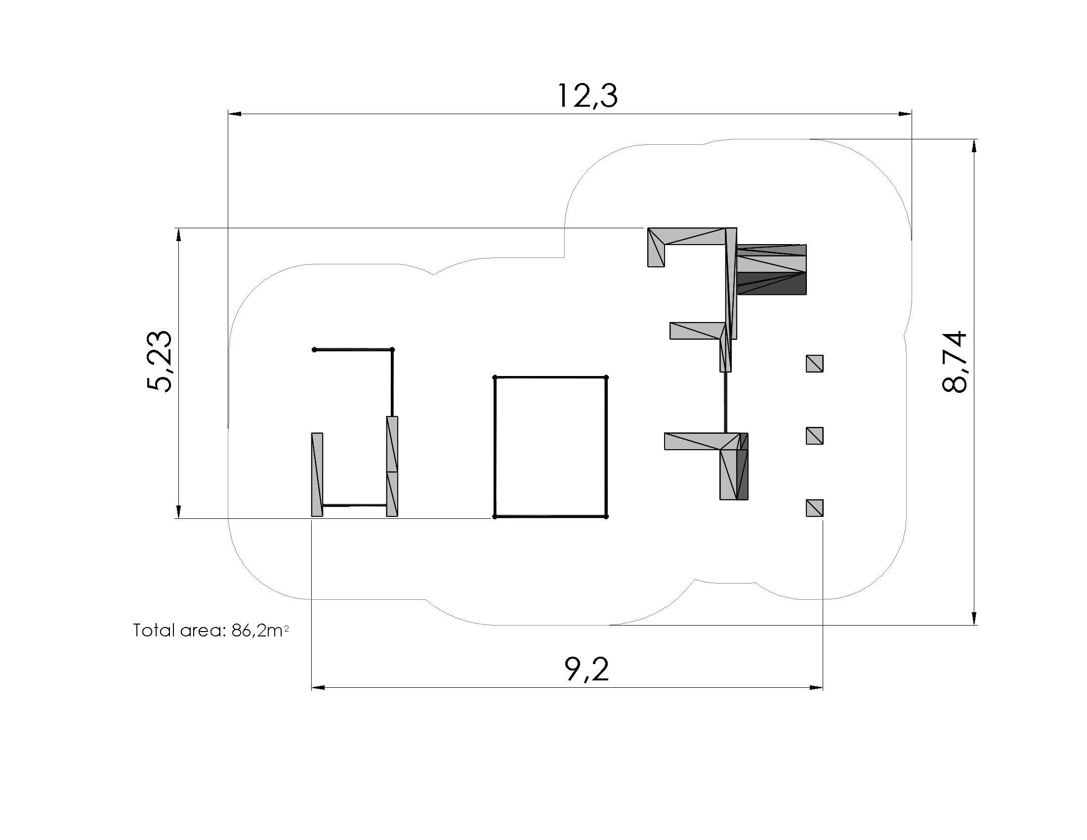
  • 5.23 m
  • 9.2 m
  • 2.5 m
  • TUV Logo
+

    Specifications-

    Technical information

    Safety area width8.74 m
    Safety area length12.3 m
    Width of structure5.23 m
    Length of structure9.2 m
    Height of structure2.5 m
    Max. fall height2.5 m
    Recommended age of children6+

    Product description

    The wall elements of parkour structures are made of sustainable cross-laminated timber (CLT) to ensure high stability and durability despite constantly changing atmospheric humidity. A four-stage treatment process has been employed to make the wood weatherproof. The top edges of wall elements are covered with rubber coated anti-slip plastic which comes in two colour options: grey or red. Horizontal pipes are made of stainless steel and the vertical posts of hot-dip galvanized and powder coated steel. The structure is meant to be fixed on surface (e.g. 150mm reinforced concrete slab foundation). Ground fixings are made of hot-dip galvanized metal.

    Safety area

    Downloads+

    Material+

    Installation info+

    Creating a world of fun