3D Planeerija
Avaleht / Tooted / Mänguväljakud / Võrkatraktsioonid ja välibatuudid / Välibatuut JUMP XL

Toote kood:

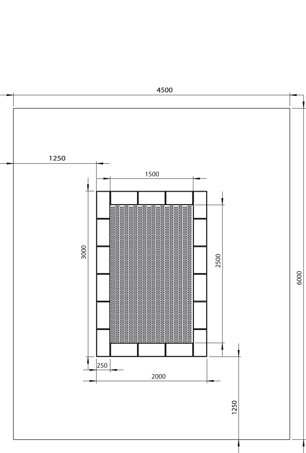
Välibatuut JUMP XL

  • 4 a
  • 2 m
  • 3 m
  • 0.4 m
  • TUV Logo
+

    Spetsifikatsioon-

    Tehniline info

    Toote laius2 m
    Toote pikkus3 m
    Toote kõrgus0.4 m
    Toote kasutajate soovituslik vanus4+

    Toote kirjeldus

    Batuut on üks vahvamaid vaba aja veetmise atraktsioone. Batuudil hüppamine meeldib nii lastele, noortele kui ka täiskasvanutele. Maa sees asuv batuut on ohutu, ei nõua järelevalvet ning on vandaalikindel. Toote serv on ääristatud kummist turvamatiga. Hüppeala suurus on 1,5x2,5m.

    Turvaala

    Allalaadimised+

    Materjal+

    Paigalduse info+

    Värskeimad tööd