3D Planeerija
Avaleht / Tooted / Mänguväljakud / Mängulinnakud / Väikelaste mängulinnak AMANDUS

Toote kood:

Väikelaste mängulinnak AMANDUS

  • 1 a
  • 0.95 m
  • 3.78 m
  • 7.24 m
  • 3.94 m
  • TUV Logo

Värvivalikud

Materjal

+

    Spetsifikatsioon-

    Tehniline info

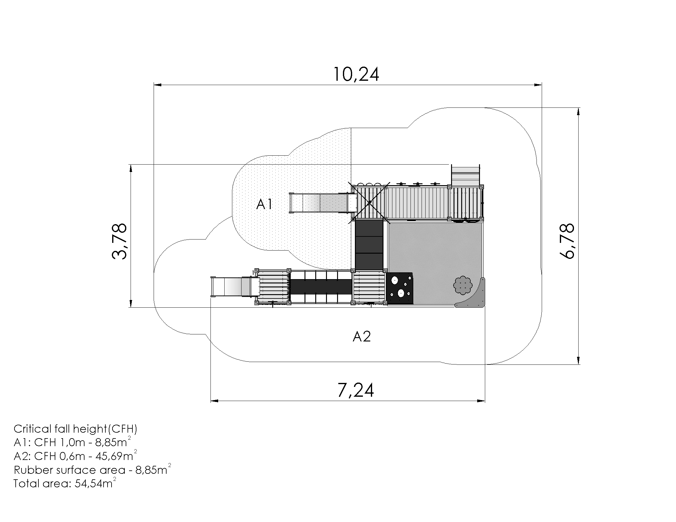
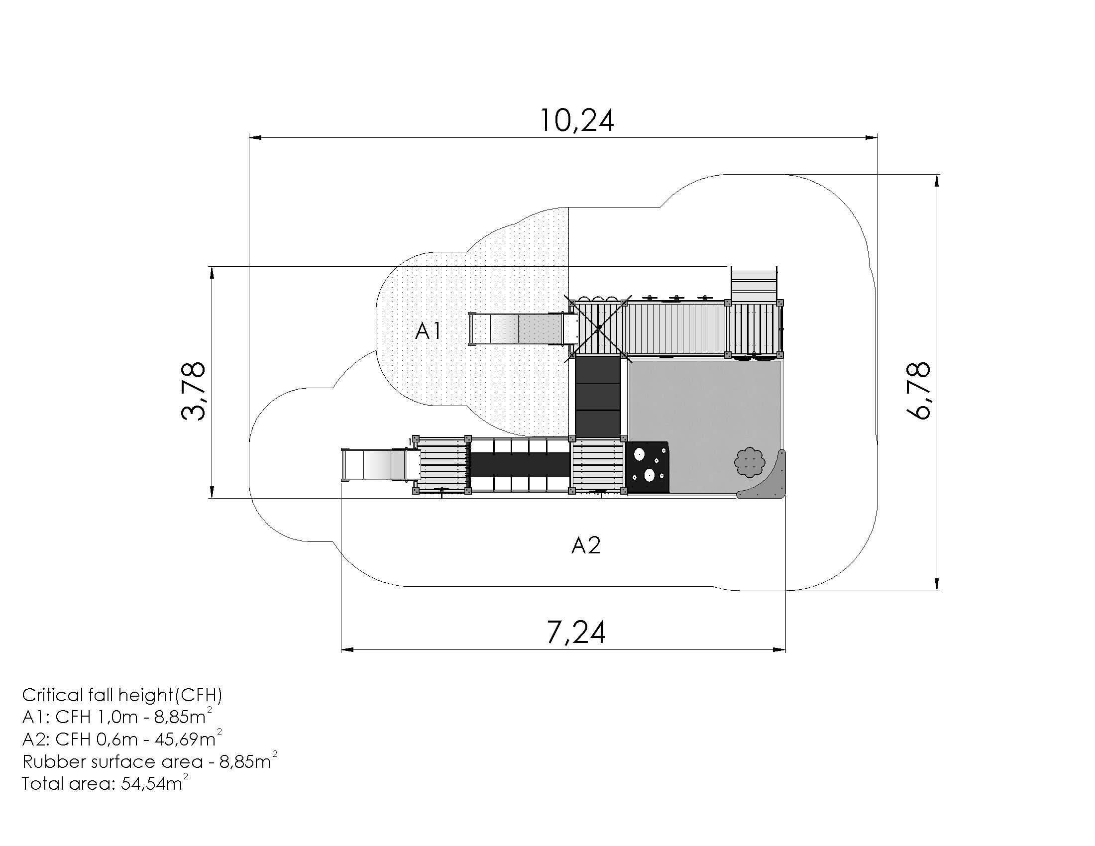
    Turvaala laius6.78 m
    Turvaala pikkus10.24 m
    Toote laius3.78 m
    Toote pikkus7.24 m
    Toote kõrgus3.94 m
    Maksimaalne kukkumiskõrgus0.95 m
    Toote kasutajate soovituslik vanus1+

    Toode koosneb

    Platvormid3 tk kõrgusega 0.55 m
    Platvormid1 tk kõrgusega 0.95 m
    Katused1 tk
    Liurennid1 tk kõrgusega 0.55 m
    Liurennid1 tk kõrgusega 0.95 m
    Sillad3 tk
    Kaldteed1 tk
    Käsipuudega trepid1 tk
    Tegeluspaneelid10 tk
    Postid16 tk
    Paneelid/Plaadid8 tk
    Torud7 tk

    Toote kirjeldus

    Nelja platvormiga kompleksne väikelaste mängulinnak, milles on ühendatud hulganisti elemente erinevate füüsiliste ja motoorsete oskuste arendamiseks ning aktiivseks mänguks. Linnakule pääseb mööda külgpaneelidega treppi või astmetega kaldteed. Platvormide vahel liikumiseks on käsipuudega turvaline võrksild, kaks astmetega kaldsilda ja kaks läbipugemisavaga paneeli, liugu saab lasta liurennist. Linnakuga on ühendatud liivakast, millel on mängimiseks väike lauake ja nurgas liivakookide tegemiseks sobiv mänguplaat. Motoorsete oskuste arenguks on linnakul mitu erinevat pöörlevat mängupaneeli, arvelaud, Trips-Traps-Trulli mäng, seieritega kell, liigutatavad purjekad ja lausa viis rooliratast.

    Turvaala

    Külgvaade

    Allalaadimised+

    Materjal+

    Paigalduse info+

    Värskeimad tööd